Villa a schiera in vendita

Sarnico, Via roma
€ 360.000
5 locali 5 locali
194 Mq 194 Mq
4 bagni 4 bagni

Villa a schiera in vendita

Sarnico, Via roma

Descrizione annuncio

SARNICO: Proponiamo in vendita villetta a schiera centrale edificata nei primi anni 2000, inserita in un contesto residenziale tranquillo e riservato, ma al contempo comodo al centro ed ai principali servizi offerti dal paese.

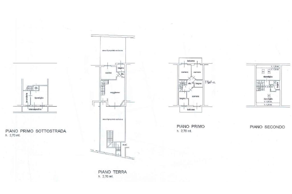
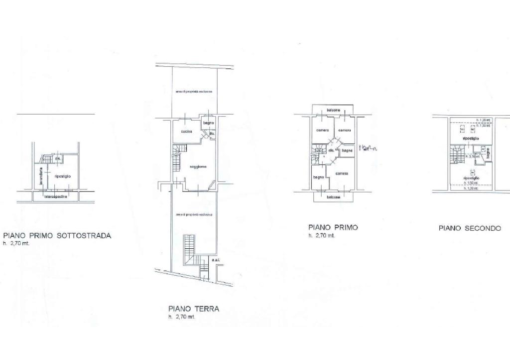
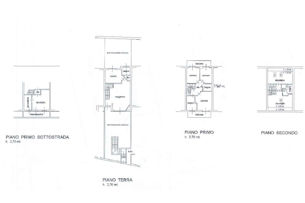
L’immobile si sviluppa su tre livelli fuori terra oltre a un piano sottostrada, con una distribuzione funzionale e ben razionalizzata degli spazi.

Al piano terra si sviluppa la zona giorno, composta da una cucina abitabile con affaccio diretto sul giardino retrostante, spazio riservato e funzionale, particolarmente adatto per pranzi e cene all’aperto, e da un ampio e luminoso soggiorno con affaccio sul giardino frontale. Da quest’ultimo si accede all’ingresso pedonale dell’abitazione tramite scala esterna. A completare il piano un pratico disimpegno che ci conduce al bagno di servizio finestrato.

Il piano primo ospita la zona notte, composta da una camera matrimoniale con accesso sul balcone dal quale abbiamo una vista panoramica sul paese ed uno scorcio di vista lago; un bagno padronale finestrato con vasca idromassaggio, un bagno cieco con doccia e due camerette con accesso sul secondo balcone.

Il piano secondo accoglie un locale mansardato con area studio o spazio polifunzionale, un bagno finestrato con doccia ed una camera matrimoniale.

Il piano sottostrada è destinato a locali accessori, tra cui lavanderia e ripostiglio, collegati internamente all’abitazione, a conferma della praticità dell’immobile per un utilizzo quotidiano.

Completa la soluzione box doppio in larghezza servito da ampio spazio di manovra nel corsello condominiale al quale si accede tramite cancello elettrico.

La costruzione si presenta con caratteristiche tipiche dell’epoca di edificazione, impianti autonomi e una struttura adatta sia a nuclei familiari sia a chi ricerca una soluzione abitativa completa, ben distribuita e collocata in una zona residenziale equilibrata tra tranquillità e vicinanza al centro urbano.

Per ulteriori informazioni non esitate a contattarci. 035.4261062

Mostra tutto

Nelle vicinanze

Trasporto pubblico Trasporto pubblico
Paratico-Sarnico
Paratico-Sarnico
410 m
Sarnico
370 m
Ricariche auto elettriche Ricariche auto elettriche
Evway Paratico
1,4 Km
Scuole Scuole
Scuole
450 m
Scuola Primaria Suor Celina Manfredi
860 m
Scuola Secondaria di Primo Grado Giacomo Matteotti
910 m
Accademia
2,7 Km
Farmacia Farmacia
Farmacia Perani
570 m
Farmacia Sant'Anna
2,1 Km
Ospedali Ospedali
Ospedale di Sarnico
260 m
Supermercati Supermercati
Supermercati
490 m
Despar
550 m
MD
580 m
Simply
610 m
Lidl
1,3 Km
Bar Bar
Fuori orario
150 m
Bar La Dama nera
310 m
Araba Fenice
330 m
Swing
330 m
ImBARcadero
350 m
Ristoranti Ristoranti
La Rosa Scarlatta
160 m
Dinner at Number 24
170 m
L'Amalfitana S.R.L.
170 m
40-58 Pasta & Co
210 m
Il Chiostro
240 m
Mostra tutto

Caratteristiche

Rif.:
60989737
Piano:
1 di 4 (Piano su più livelli)
Box:
2
Balconi:
2
Camere da letto:
4
Arredamento:
Completo
Mostra tutto
Prezzo Prezzo
€ 360.000
Rata mutuo Rata mutuo
€ 1.699 / mese
Spese annue Spese annue
€ 100
Proponi il tuo prezzoProponi il tuo prezzo
Immobile valutato con T·Valuta

Classe Energetica

D
D
D
D
D
D
D
D
D
EP globale non rinnovabile:
112.41 kW h/m² anno
EP invernale del fabbricato:
EP estiva del fabbricato:
Anno di costruzione:
2002
Riscaldamento:
Autonomo
Tipo impianto:
A radiatori
Tipo alimentazione:
Metano

Ti interessa visionare l'immobile?

Fissa un appuntamento  Fissa un appuntamento

Richiedi informazioni

Clicca su Leggi per aprire l'informativa
* Questi campi sono obbligatori

Calcola il tuo mutuo

Semplice e senza impegno
Anticipo

( % )
Mutuo

( % )

pochi semplici passi

inserisci i tuoi dati
Questionario completato
Grazie per aver richiesto un appuntamento senza impegno con un nostro Consulente del Credito e Assicurativo.

Hai inserito correttamente tutti i dati necessari e a breve riceverai una e-mail con un link da convalidare per inviare i tuoi dati.
Affiliato
Immobiliare Sarnico Srl
Via Roma, 68 24067 Sarnico (BG)

Il nostro staff


  • Linda Acerbis
    Collaboratrice

  • Nicole Foresti
    Collaboratrice

  • Paolo Plebani
    Affiliato

  • Giada Tripodi
    Coordinatrice
Via Roma, 68 24067 Sarnico (BG)
Zona: Lago D'Iseo - Sarnico - Predore - Villongo
Mostra su mappa
Orari: Dal lunedì al venerdì 9.00-12.30 e 14.30-20.00, il sabato chiusura h 16.00. Domenica su appuntamento
Affiliato
Immobiliare Sarnico Srl
Via Roma, 68 24067 Sarnico (BG)

2025 Tecnocasa Franchising S.p.A. - P. IVA 08365160152 - Via Monte Bianco 60/A 20089 Rozzano (MI). Ogni agenzia ha un proprio titolare ed è autonoma. Privacy policy | Policy utilizzo | Cookie policy