Casa indipendente in vendita

Foresto Sparso, Via S. Michele
€ 165.000
Prezzo aggiornato
4 locali 4 locali
165 Mq 165 Mq
1 bagno 1 bagno

Casa indipendente in vendita

Foresto Sparso, Via S. Michele

Descrizione annuncio

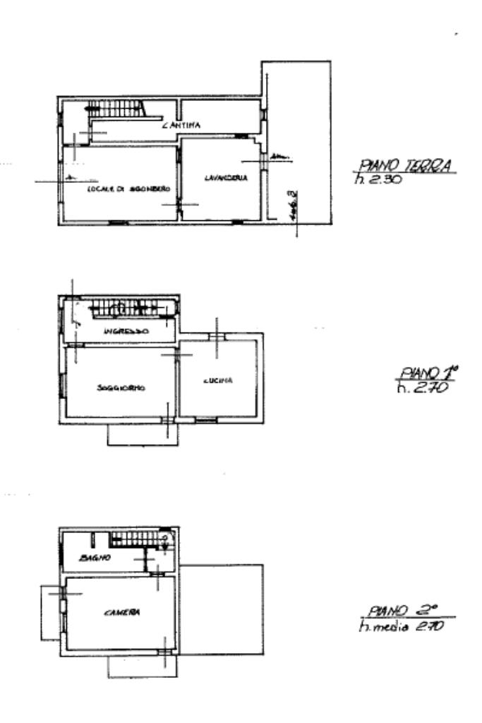
FORESTO SPARSO: Proponiamo in vendita casa indipendente in zona collinare a pochi minuti dal lago d'Iseo, perfetto per gli amanti della natura.

La soluzione è divisa su più livelli;

Al piano rialzato vi è un generoso soggiorno con cucina separata e abitabile, quali si affacciano sul cortile esterno, proseguendo, al piano superiorevi è una spaziosissima camera matrimoniale con bagno.

A concludere, al piano seminterrato vi sono cantina, due stanze nella quale poter ricavare una taverna e box.

Per ulteriori informazioni non esitate a contattarci!

Mostra tutto

Nelle vicinanze

Bar Bar
Bar
2,4 Km
Bar Isolabella
2,9 Km
Ristoranti Ristoranti
Azienda Agrituristica "La Piccola"
690 m
Cascina Boneta
2,7 Km
Mostra tutto

Caratteristiche

Rif.:
61072003
Piano:
Su più livelli di 2
Totale piani:
2
Box:
1
Balconi:
3
Terrazzi:
1
Mostra tutto
Prezzo Prezzo
€ 165.000
Rata mutuo Rata mutuo
€ 779 / mese
Spese annue Spese annue
€ 0
Proponi il tuo prezzoProponi il tuo prezzo

Classe Energetica

Questo immobile è esente da classe energetica
Anno di costruzione:
1967
Riscaldamento:
Autonomo
Tipo impianto:
A radiatori
Tipo alimentazione:
Gasolio

Prezzo ridotto di €1 (3%%)

Ti interessa visionare l'immobile?

Fissa un appuntamento  Fissa un appuntamento

Richiedi informazioni

Clicca su Leggi per aprire l'informativa
* Questi campi sono obbligatori

Calcola il tuo mutuo

Semplice e senza impegno
Anticipo

( % )
Mutuo

( % )

pochi semplici passi

inserisci i tuoi dati
Questionario completato
Grazie per aver richiesto un appuntamento senza impegno con un nostro Consulente del Credito e Assicurativo.

Hai inserito correttamente tutti i dati necessari e a breve riceverai una e-mail con un link da convalidare per inviare i tuoi dati.
Affiliato
Immobiliare Sarnico Srl
Via Roma, 68 24067 Sarnico (BG)

Il nostro staff


  • Linda Acerbis
    Collaboratrice

  • Nicole Foresti
    Collaboratrice

  • Paolo Plebani
    Affiliato

  • Giada Tripodi
    Coordinatrice
Via Roma, 68 24067 Sarnico (BG)
Zona: Lago D'Iseo - Sarnico - Predore - Villongo
Mostra su mappa
Orari: Dal lunedì al venerdì 9.00-12.30 e 14.30-20.00, il sabato chiusura h 16.00. Domenica su appuntamento
Affiliato
Immobiliare Sarnico Srl
Via Roma, 68 24067 Sarnico (BG)

2025 Tecnocasa Franchising S.p.A. - P. IVA 08365160152 - Via Monte Bianco 60/A 20089 Rozzano (MI). Ogni agenzia ha un proprio titolare ed è autonoma. Privacy policy | Policy utilizzo | Cookie policy